咨詢熱線:
400-0346-119
咨詢熱線:
400-0346-119
咨詢熱線:
400-0346-119
咨詢熱線:
400-0346-119
咨詢熱線:
400-0346-119
咨詢熱線:
400-0346-119

一、利達火災報警控制器(聯動型) JB-QB-LD128EN(M)介紹
利達火災報警控制器(聯動型) JB-QB-LD128EN(M)是智能化的二總線火災自動報警設備,采用中文液晶顯示, 集報警及聯動控制于一體,分2個回路,*大地址點數為512點,配備了8路繼電器有源輸出,具有一個CANBus接口。該控制器采用單片機控制技術,配合北京億杰消防工程公司E/EN系列探測器、模塊、手報及其他相關設備,廣泛應用于中、小型消防工程項目。經過公安部消防產品合格評定中心及**消防電子產品質量監督檢驗中心依據GB4717-2005《火災報警控制器》、 GB16806-2006《消防聯動控制系統》、GB/T19001-2000《質量管理體系 要求》檢驗和審核,符合認證要求,取得消防產品3C認證。
二、利達火災報警控制器(聯動型) JB-QB-LD128EN(M)功能
★ 本機容量:2個回路、*大512個地址點、手動控制盤1塊(8路輸出,其中包括1路聲光警報器專用輸出)。
★ 可選配串行中文微型打印機。
★ 可通過LD6900系列通訊模塊(CANBus、RS232、RS485、以太網、電話線、GPRS)與其他設備聯網。
★ 全中文128*64 LCD液晶顯示屏,指示燈指示關鍵狀態,操作方便。
★ 中、英文顯示靈活切換,滿足產品國際化的要求。
★ 具有黑匣子功能,能存貯1000條火警記錄、1000條氣體滅火記錄和1000條其它記錄。
★ 報警閾值設定靈活。
★ 外部設備可通過總線控制,也可通過多線手動盤直接控制。
★ 具有回路短路保護和電源短路保護功能。
★ 具有監管報警功能,可監測現場漏電電流的報警信息,并可實現自動控制漏電斷電。
三、利達火災報警控制器(聯動型) JB-QB-LD128EN(M)主要技術指標
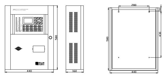
四、利達火災報警控制器(聯動型) JB-QB-LD128EN(M)外形與結構尺寸圖

五、利達火災報警控制器(聯動型) JB-QB-LD128EN(M)端子圖

六、利達火災報警控制器(聯動型) JB-QB-LD128EN(M)系統框圖

七、利達火災報警控制器(聯動型) JB-QB-LD128EN(M)布線要求:與LD128E(M) 相同

| 火災報警控制器 | JB-QB/LD128E(M)-64 | 臺 | 13200 | 壁掛安裝。16*2字符液晶顯示。單回路,純報警,有3組無源接點輸出(聲光警報輸出、公共故障輸出、公共火警輸出)。備電需配4Ah6V電池2節。可通過選配專用模塊實現聯網功能(只作為區域機)。 |
| 火災報警控制器 /氣體滅火控制器 | JB-QB-LD128EN(M)-AI/JB-QB-LD5502ENI | 臺 | 31250 | 壁掛安裝。128*64中文液晶顯示。單回路,64個報警點,有4組可編程無源接點輸出,單路氣體滅火控制,兩路聲光警報專用輸出。含打印機及4A聯動電源。備電需配7Ah12V電池2節。可作為區域機通過選配專用通訊模塊實現聯網功能。 |
| 火災報警控制器(聯動型) | JB-QB-LD128EN(M)-32C | 臺 | 22800 | 壁掛安裝。128*64中文液晶顯示。雙回路,帶7路多線控制盤和一路聲光警報專用輸出,聯動地址與報警地址混編。含打印機及4A聯動電源。備電需配14Ah12V電池2節。可作為區域機通過選配專用通訊模塊實現控制器間聯網功能。 |
| 火災報警控制器 (聯動型) | JB-QB-LD128EN(M)-64C | 臺 | 23200 | |
| 火災報警控制器 (聯動型) | JB-QB-LD128EN(M)-128C | 臺 | 24800 | |
| 火災報警控制器 (聯動型) | JB-QB-LD128EN(M)-200C | 臺 | 26800 | |
| 火災報警控制器 (聯動型) | JB-QB-LD128EN(M)-256C | 臺 | 30800 | |
| 火災報警控制器 (聯動型) | JB-QB-LD128EN(M)-360C | 臺 | 36800 | |
| 火災報警控制器 (聯動型) | JB-QB-LD128EN(M)-420C | 臺 | 40800 | |
| 火災報警控制器 (聯動型) | JB-QB-LD128EN(M)-512C | 臺 | 45800 |
